Mieszkanie na sprzedaż

Warszawa, Mokotów, Augustówka, Antoniewska

3 pokoje
63.00 m²
16 031,75 zł/m2
HSN-MS-210

1 010 000 zł

Szczegóły oferty

Symbol oferty HSN-MS-210
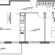
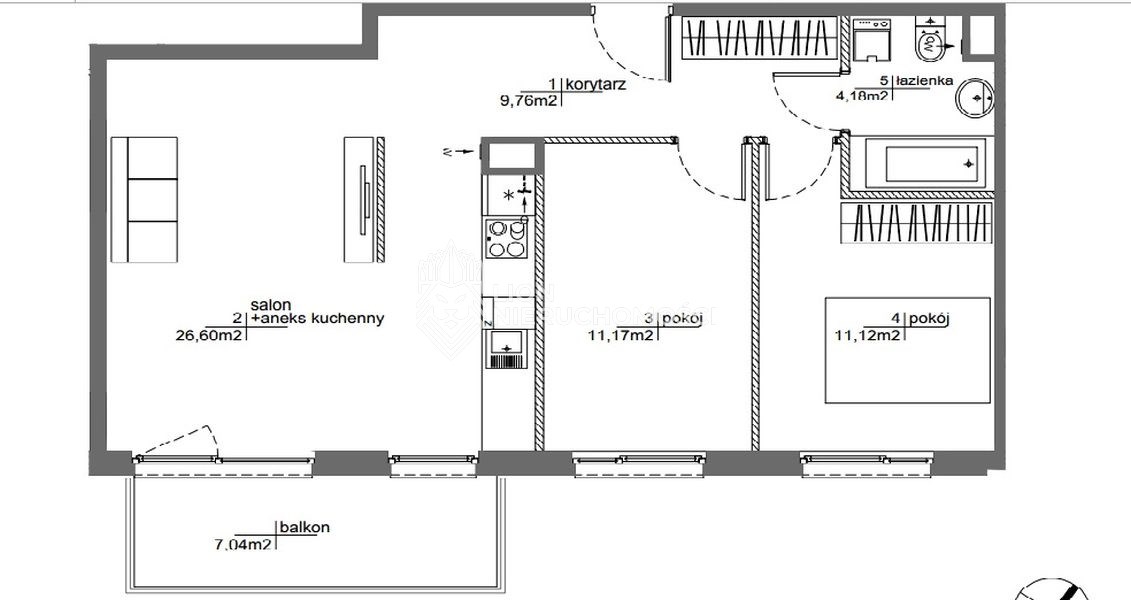
Powierzchnia 63,00 m²
Powierzchnia balkonów/tarasów 8,00 m²
Liczba pokoi 3
Rodzaj budynku blok
Standard
Opłaty wg liczników CO, fundusz remontowy, inne, śmieci, woda
Liczba pięter w budynku 7
Stan lokalu deweloperski
Instalacje nowe
Balkon jest
Liczba balkonów 1
Rok budowy 2023
Woda tak - miejska
Dojazd asfalt
Ogrzewanie miejskie
Alarm tak
Winda tak
Liczba wind 1
Usytuowanie jednostronne
Drzwi antywłamaniowe tak
Pierwsza linia brzegowa tak
Jarosław Bokszczanin

Jarosław Bokszczanin

Manager/ Właściciel

Napisz wiadomość 10 Ofert

Opis nieruchomości

"RYTM MOKOTOWA" UL. ANTONIEWSKA MOKOTÓW

W nowej inwestycji " Rytm Mokotowa" przy ulicy Antoniewska 62,83 z balkonem 7,04 m2 na VI piętrze i/lub 63,53 m2 na V piętrze z balkonem 8,26  ,  Mieszkania składają się  z kuchni w aneksie z salonem   z wyjściem na balkon , 2 pokoi i  łazienki z WC oraz przedpokoju  . Mieszkania w stanie deweloperskim,  Pełna własność. Budynek monitorowany i strzeżony - (ochrona, kamery, całodobowa recepcja, siłownia, rowerowania, strefa yogi, kącik malucha ).  Okna nowe  i antywłamaniowe drzwi wejściowe. Do mieszkań albo miejsce garażowe albo 2 miejsca naziemne 
Cena  : 1 010 000 zł + miejsca postojowe/ garażowe  

Jako Agencja Pośrednictwa pobieramy prowizję
Wszelkie informacje zamieszczone w niniejszej ofercie (w tym plany, rysunki, wizualizacje i ceny), nie stanowią oferty w rozumieniu przepisów prawa cywilnego tj. art.(Oferta) oraz art. 1 (Oferta złożona w postaci elektronicznej) Kodeksu cywilnego.
Ubezpieczenie OC Pośrednika w PZU S.A.

High Street Nieruchomości , siedzibą w (02 – 672 ) Warszawie, przy ul. Domaniewskiej 47 lokal 10, jako administrator danych osobowych, informują Państwa ( Panią i/lub Pana ), iż, podanie przez Państwa ( Panią i/lub Pana ) danych jest dobrowolne jednakże niezbędne w celu świadczenie usług pośrednictwa w obrocie nieruchomościami przez High Street Nieruchomości. – zaznaczamy iż posiadają Państwo ( Pani i/lub Pan ) prawo dostępu do treści swoich danych jak i  ich sprostowania, usunięcia, ograniczenia przetwarzania, prawo do przenoszenia danych, prawo do cofnięcia zgody w dowolnym momencie bez wpływu na zgodność z prawem przetwarzania. Dane te mogą być udostępniane przez High Street Nieruchomości, podmiotom upoważnionym do uzyskania informacji na podstawie przepisów .. Podane dane będą przetwarzane na podstawie  i zgodnie z treścią ogólnego rozporządzenia o ochronie danych. Dane osobowe będą przechowywane przez okres przechowywania danych wynoszący on 5 lat licząc od zakończenia umowy ( w drodze : wygaśnięcia,  rozwiązania, anulowania itp.) oraz w czasie obowiązywania zawartej umowy. Macie Państwo (  Pani i/lub Pan ) prawo wniesienia skargi do GIODO gdy uznacie Państwo ( Pani i/lub Pan ) , iż przetwarzanie danych osobowych dotyczących Państwa ( Pani i/lub Pana ) narusza przepisy ogólnego rozporządzenia o ochronie danych osobowych.

 

Lokalizacja nieruchomości

Manager/ Właściciel

Proszę wprowadzić poprawne imię i nazwisko
Proszę wprowadzić poprawny numer telefonu
Proszę wprowadzić poprawny adres e-mail
Proszę zaznaczyć wymagane zgody
Rozwiąż równanie:
25 2
Niepoprawny wynik