Mieszkanie na sprzedaż

Szczecin, Gumieńce

3 pokoje
72.16 m²
12 957,32 zł/m2
parter
HMSN-MS-53

935 000 zł

Nowa oferta

Szczegóły oferty

Symbol oferty HMSN-MS-53
Powierzchnia 72,16 m²
Powierzchnia użytkowa [m2] 72,16 m²
Liczba pokoi 3
Rodzaj budynku apartamentowiec
Standard
Piętro parter
Liczba pięter w budynku 5
Garaż garaż pod budynkiem
Stan lokalu bardzo dobry
Mies. czynsz admin. 490 PLN
Okna PCV
Instalacje nowe
Liczba tarasów 1
Rok budowy 2016
Gaz brak
Woda ciepła - miejska
Dojazd asfalt
Otoczenie osiedle
Ogrzewanie miejskie
Umeblowanie pełne
Tarasy taras
Usytuowanie narożne
Rolety antywłamaniowe tak
Pierwsza linia brzegowa tak
Jarosław Bokszczanin

Jarosław Bokszczanin

Manager/ Właściciel

Napisz wiadomość 10 Ofert

Opis nieruchomości

Trzypokojowe, widne i kompletnie wyposażone mieszkanie z ogrodem na sprzedaż.

Dodatkowo istnieje możliwość zakupu garażu w hali z bezpośrednim dostępem z klatki schodowej.

Cicha i spokojna okolica, dobrze skomunikowana z centrum Szczecina.

 

 

Zapraszam do zapoznania się ze szczegółami oferty:

• powierzchnia użytkowa: 72,16 m²,

• ogródek: 96 m²,

• rok budowy w 2016 roku

• drewniany domek gospodarczy ok. 2 m²,

• garaż w hali pod budynkiem,

• ogrzewanie i ciepła woda z sieci miejskiej,

• automatyczne rolety zewnętrzne,

• ogrzewanie z kaloryferów z sieci miejskiej.

 

 

 

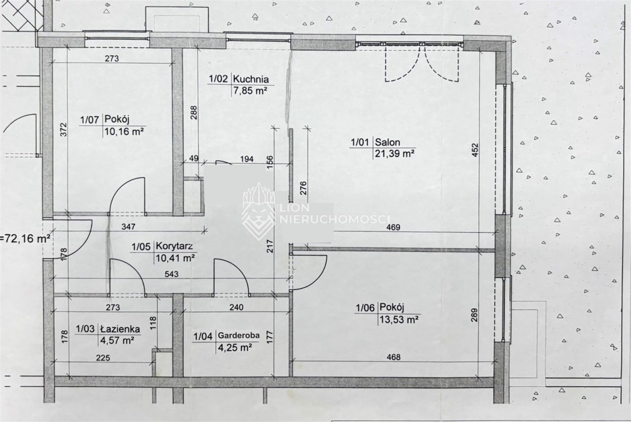
Rozkład pomieszczeń:

• korytarz - 10,41 m2

• salon – 21,39 m²

• kuchnia – 7,85 m²

• łazienka z prysznicem - 4,57 m2

• sypialnia - 13,53 m2

• pokój dziecięcy - 10,16 m2

• garderoba + pralnia 4,25 m2

 

 

Układ i wykończenie

Salon z aneksem kuchennym (29,24 m2) doświetlony trzema oknami o ekspozycji zachodnio-północnej. Połączony jest z korytarzem, co nadaje pomieszczeniu przestronności i dodatkowo zwiększa jego powierzchnię. Przestronny i słoneczny został zaprojektowany z funkcjonalnym podziałem na strefy: wypoczynkową z wygodną kanapą oraz miejscem na telewizor, odpowiednio wydzieloną strefą jadalnianą oraz aneksem kuchennym.

Z salonu można również wyjść na duży taras i pięknie zagospodarowany ogród.

Kuchnia ma pełne wyposażeniem AGD (lodówka side by side, zmywarka, piekarnik, płyta indukcyjna i okap. Na podłogach deska drewniana trójwarstwowa, w kuchni płytki.

 

Sypialnia z łóżkiem o szerokości 160 cm, toaletką z lustrem i szafkami do przechowywania. Ma okno od strony północnej. Na podłodze deska drewniana trójwarstwowa.

 

Pokój dziecięcy z oknem od strony zachodniej i widokiem na ogródek.

 

Łazienka z prysznicem typu walk in, wykończona dużymi płytkami. Prysznic jest bezbrodzikowy z odpływem liniowym, umywalka nablatowa. Dodatkowo duża szafka z szufladami pod umywalką oraz wc.

 

Garderoba z pralką i automatyczną suszarką oraz świetnie zaaranżowaną przestrzenią.

 

Korytarz wyposażony w wysoką szafę oraz szafkę na buty. Znalazło się tu także wygodne siedzisko oraz konsola z dekoracyjnym lustrem.

 

 

Standard pomieszczeń :

Mieszkanie w pełni zaprojektowane przez architekta wnętrz, z naciskiem na funkcjonalność i ergonomię. Wnętrze mieszkania jest niezwykle jasne, a taras zlokalizowany od zachodu jest perfekcyjnym miejscem na spędzanie letnich wieczorów na świeżym powietrzu.

 

 

Budynek:

Mieszkanie usytuowane na parterze w pięciopiętrowym budynku w zabudowie wielorodzinnej. Dwustronny wjazd na osiedle zamykany jest przez szlabany. Budynek okalają przynależne do mieszkań ogródki. Budynek z 2016 roku.

 

 

Koszty utrzymania:

• czynsz razem z garażem 490 zł/miesięcznie,

• ogrzewanie i ciepła woda i prąd – według zużycia.

 

 

Okolica i lokalizacja

Okolica bardzo spokojna, cicha i bezpieczna. Sąsiednie ulice są wyłącznie drogami dojazdowymi do posesji, co sprawia, że ruch jest spowolniony. Nieruchomość jest bardzo dobrze skomunikowana:

- 3 min do najbliższego przystanku autobusowego (linia 88),

- 12-15 min do pętli tramwajowej (linie 8,10),

 

W pobliżu znajdują się:

- na osiedlu ogólnodostępne place zabaw,

- przedszkole (100 m) – na tej samej ulicy,

- szkoła podstawowa (1,2 km),

- centrum handlowe CH Ster (800 m),

- Castorama (800 m)

- Żabka (200 m),

- zakład opieki zdrowotnej (400 m),

- apteka (800 m)

- Park Przygodna (200 m).

 

 

Forma własności

Pełna własność z KW.

Cena za mieszkanie: 935.000 zł.

Cena za garaż: 80.000 zł (opcjonalnie).

 

Zapraszam na prezentację.

 

Podobne oferty

Mieszkanie na sprzedaż

Szczecin, Gumieńce

3 Pokoje 74 m2 16 187,76 zł/m2

Mieszkanie na sprzedaż

Szczecin, Gumieńce

3 Pokoje 81 m2 10 456,95 zł/m2

Mieszkanie na sprzedaż

Szczecin, Gumieńce

4 Pokoje 75 m2 9 586,67 zł/m2

Mieszkanie na sprzedaż

Szczecin, Gumieńce

3 Pokoje 67 m2 13 582,09 zł/m2

Manager/ Właściciel

Proszę wprowadzić poprawne imię i nazwisko
Proszę wprowadzić poprawny numer telefonu
Proszę wprowadzić poprawny adres e-mail
Proszę zaznaczyć wymagane zgody
Rozwiąż równanie:
22 9
Niepoprawny wynik