Mieszkanie na wynajem

Szczecin, Warszewo

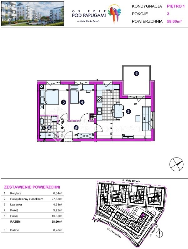
3 pokoje
58.60 m²
54,61 zł/m2
1 piętro
KNG-MW-12392

3 200 zł

Nowa oferta

Szczegóły oferty

Symbol oferty KNG-MW-12392
Powierzchnia 58,60 m²
Powierzchnia użytkowa [m2] 58,60 m²
Powierzchnia balkonów/tarasów 8,00 m²
Liczba pokoi 3
Liczba sypialni 2
Rodzaj budynku niski budynek
Technologia budowlana cegła + styropian
Kaucja zabezp. 5000
Standard
Opłaty w czynszu Części wspólne, fundusz remontowy, monitoring, ochrona, odśnieżanie, ogrzewanie, Parking, prąd, Winda, woda ciepła i zimna, woda/ryczałt na wodę, zaliczka na fundusz remontowy, zarząd
Piętro 1
Liczba pięter w budynku 4
Garaż miejsce garażowe
Piwnica [m2] 5,00 m²
Stan lokalu bardzo dobry
Mies. czynsz admin. 420 PLN
Czynsz zimowy 420 PLN
Okna nowe PCV
Balkon taras
Liczba tarasów 1
Rok budowy 2022
Plac zabaw tak
Widok na inne budynki
Gaz brak
Woda ciepła - miejska
Dojazd asfaltowa/kostka
Otoczenie budynki mieszkalne
Ogrzewanie centralne
Umeblowanie tak
Alarm tak
Winda tak
Liczba wind 1
Tarasy taras
Usytuowanie jednostronne
Klucze tak
Pierwsza linia brzegowa tak
Jarosław Bokszczanin

Jarosław Bokszczanin

Manager/ Właściciel

Napisz wiadomość 10 Ofert

Opis nieruchomości

OFERTA NA WYŁĄCZNOŚC - KLUCZE W BIURZE

OFERTA WYNAJMU NOWEGO TRZYPOKOJOWEGO MIESZKANIA, POŁOŻONEGO W SZCZECINIE - DZIELNICA WARSZEWO OS. MAŁE BŁONIA ( POD PAPUGAMI). BUDYNEK Z 2022r. MONITORING I WIDNA. NIERUCHOMOŚĆ O POWIERZCHNI UŻYTKOWEJ 58m2 + TARAS 8m2 + MIEJSCE PARKINGOWE Z ZAPLECZEM I KOMÓRKA LOKATORSKA (300zł miesięcznie dodatkowej opłaty). 



W skład mieszkania wchodzi:


- salon z aneksem kuchennym ( nowoczesna zabudowa ze sprzętem AGD) 
- dwie oddzielne sypialnie 
- łazienka z toaletą (pralka na wyposażeniu)
- przedpokój z szafą w zabudowie

Mieszkanie umeblowane i wyposażone zgodnie z dokumentacją fotograficzną. 


Czynsz najmu 3.500zł ( razem z garażem) + opłata do zarządcy 420 zł/mies ( woda, śmieci, administracja, monitoring, winda), dodatkowo SEC. (ogrzewanie i ciepła woda) zimą ok. 380 zł/mies. , lato 110 zł/mies.  + prąd ok. 350zł za dwa miesiące.

Kaucja zabezpieczająca 5.000zł płatna przy podpisaniu umowy najmu. Minimalny okres najmu 12mies. 

Mieszkanie do wydania od ręki. 

 

Podobne oferty

Nowa oferta

Mieszkanie na wynajem

Szczecin, Warszewo

2 Pokoje 56 m2 40,32 zł/m2
Nowa oferta

Manager/ Właściciel

Proszę wprowadzić poprawne imię i nazwisko
Proszę wprowadzić poprawny numer telefonu
Proszę wprowadzić poprawny adres e-mail
Proszę zaznaczyć wymagane zgody
Rozwiąż równanie:
16 4
Niepoprawny wynik